
Stan A35
Otkrijte moderan jednosoban stan površine 46,57 m², pažljivo projektovan za udoban i funkcionalan život. Prostrana dnevna soba sa trpezarijom i kuhinjom čini srce doma, dok terasa pruža savršeno mesto za opuštanje. Savršen spoj elegancije, praktičnosti i prijatnog ambijenta — idealan stan za savremeni način života u Požarevcu.

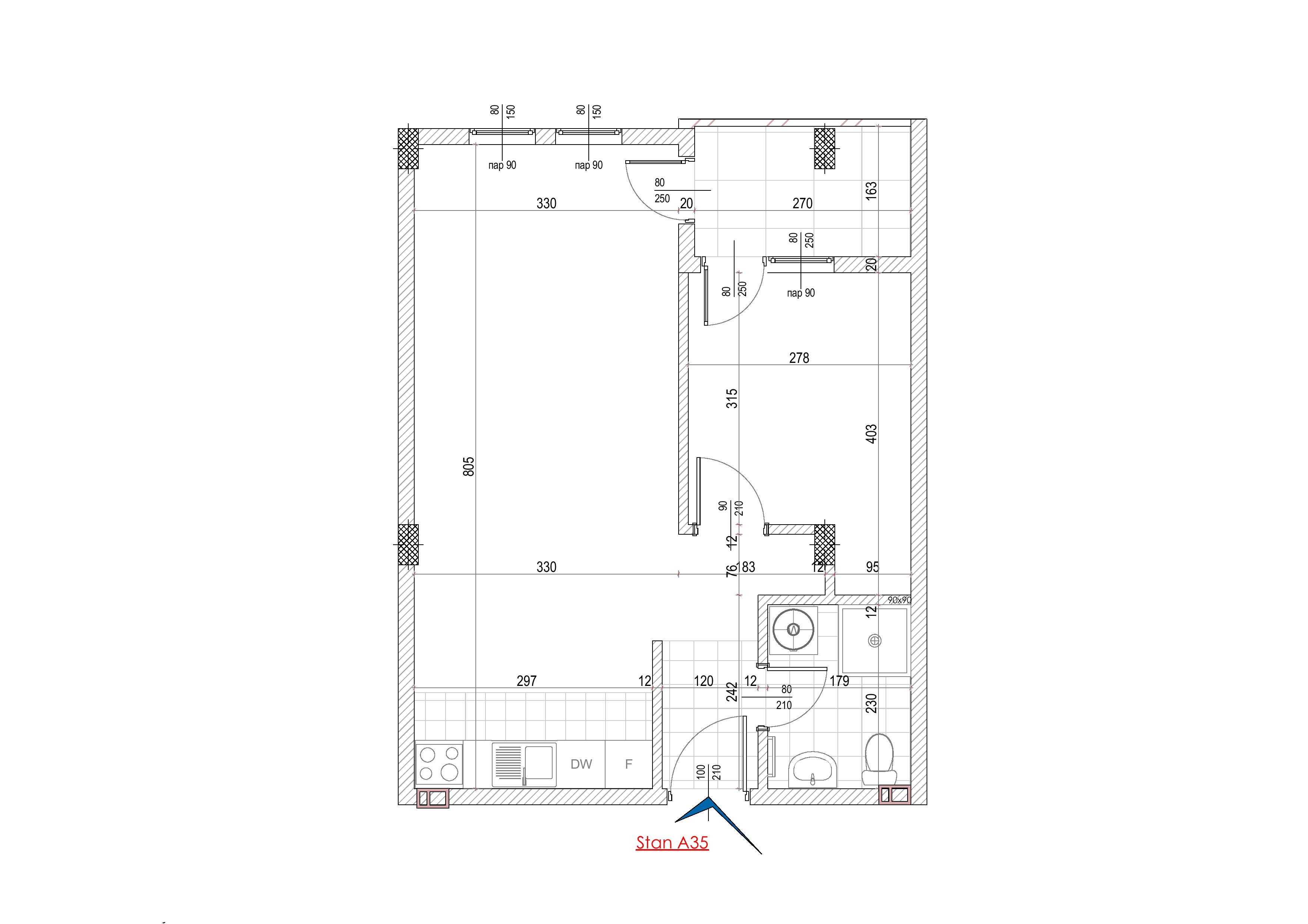
Opis stana A35
Stan A35 je funkcionalno projektovan jednosoban stan ukupne neto površine od 46,57 m², koji pruža optimalan raspored prostorija i udobnost za svakodnevni život.
Na samom ulazu nalazi se hodnik površine 2,15 m², koji omogućava praktičan pristup svim delovima stana. Iz hodnika se ulazi u kupatilo površine 3,97 m², moderno osmišljeno za maksimalnu iskorišćenost prostora.
Kuhinja zauzima 3,46 m² i povezana je sa dnevnom sobom sa trpezarijom, čija površina iznosi čak 21,69 m², što čini centralni i najprostraniji deo stana. Ovaj otvoreni koncept omogućava dovoljno prirodnog svetla i prijatan ambijent za odmor, druženje i obroke.
Pored dnevnog dela nalazi se degažman (prolazni deo) od 1,85 m², koji vodi ka spavaćoj sobi površine 9,30 m² – udobnoj i mirnoj zoni za odmor i privatnost.
Stan poseduje i terasu površine 4,15 m², idealnu za uživanje na otvorenom, ispijanje jutarnje kafe ili večernje opuštanje.
Celokupna organizacija prostora u stanu A35 osmišljena je tako da pruži maksimalnu funkcionalnost, udobnost i osećaj prostranosti.




