
Stan A3
Otkrijte moderan četvorosoban stan površine 73,24 m², pažljivo projektovan za udoban i funkcionalan život. Prostrana dnevna soba sa trpezarijom i kuhinjom čini srce doma, sa tri komforne spavaće sobe i degažmanom koji obezbeđuje privatnost. Savršen spoj elegancije, praktičnosti i prijatnog ambijenta — idealan stan za savremeni način života.

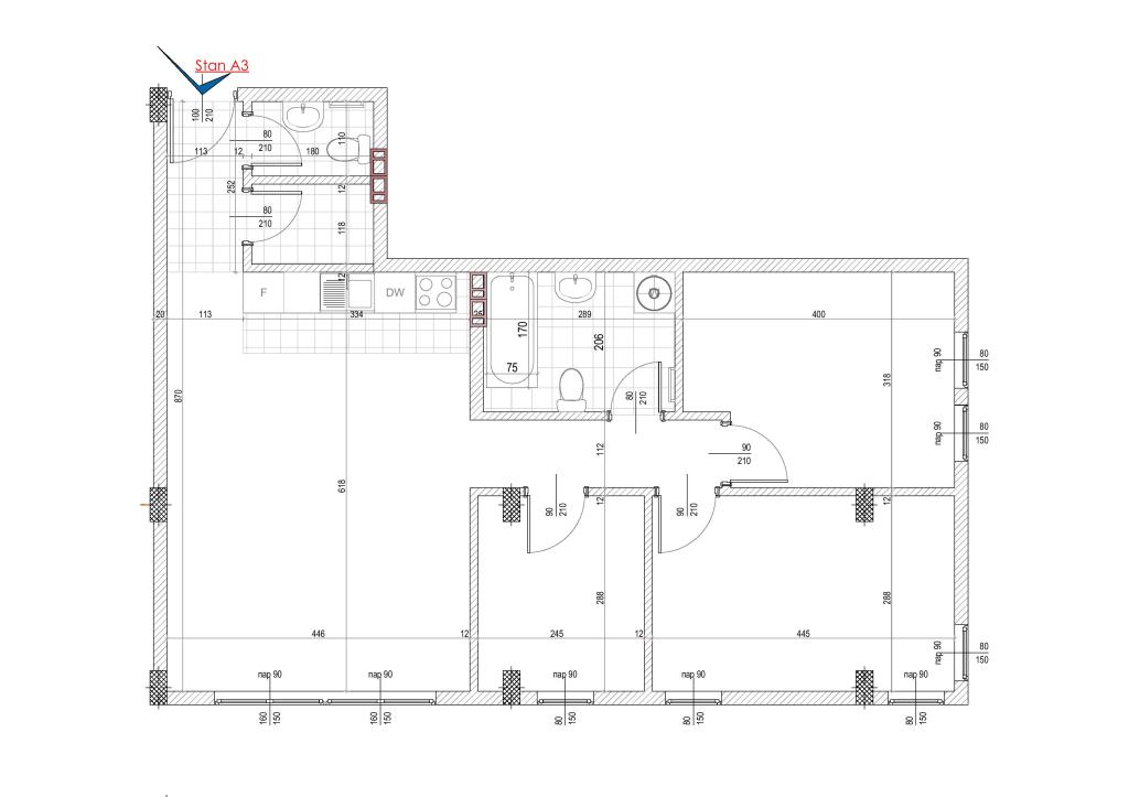
Opis stana A3
Stan A3 je funkcionalno projektovan četvorosoban stan ukupne neto površine od 73,24 m², koji pruža optimalan raspored prostorija i udobnost za svakodnevni život.
Na samom ulazu nalazi se hodnik površine 2,75 m², koji omogućava praktičan pristup svim delovima stana. Iz hodnika se ulazi u wc površine 1,93 m², kao i u ostavu površine 2,06 m², moderno osmišljenu za maksimalnu iskorišćenost prostora.
Kuhinja zauzima 3,88 m² i povezana je sa dnevnom sobom sa trpezarijom, čija površina iznosi čak 22,85 m², što čini centralni i najprostraiji deo stana. Ovaj otvoreni koncept omogućava dovoljno prirodnog svetla i prijatan ambijent za odmor, druženje i obroke.
Pored dnevnog dela nalazi se degažman (prolazni deo) od 3,61 m², koji vodi ka spavaćim sobama površine 11,58 m², 12,27 m² i 6,68 m², kao i kupatilo površine 5,63 m² – udobnoj i mirnoj zoni za odmor i privatnost.
Celokupna organizacija prostora u stanu A3 osmišljena je tako da pruži maksimalnu funkcionalnost, udobnost i osećaj prostranosti.







