
Stan B20
Otkrijte moderan četvorosoban stan površine 78,35 m², pažljivo projektovan za udoban i funkcionalan život. Prostrana dnevna soba sa trpezarijom i kuhinjom čini srce doma, sa tri komforne spavaće sobe i degažmanom koji obezbeđuje privatnost. Terasa od 5,53 m² pruža savršeno mesto za opuštanje. Savršen spoj elegancije, praktičnosti i prijatnog ambijenta — idealan stan za savremeni način života.

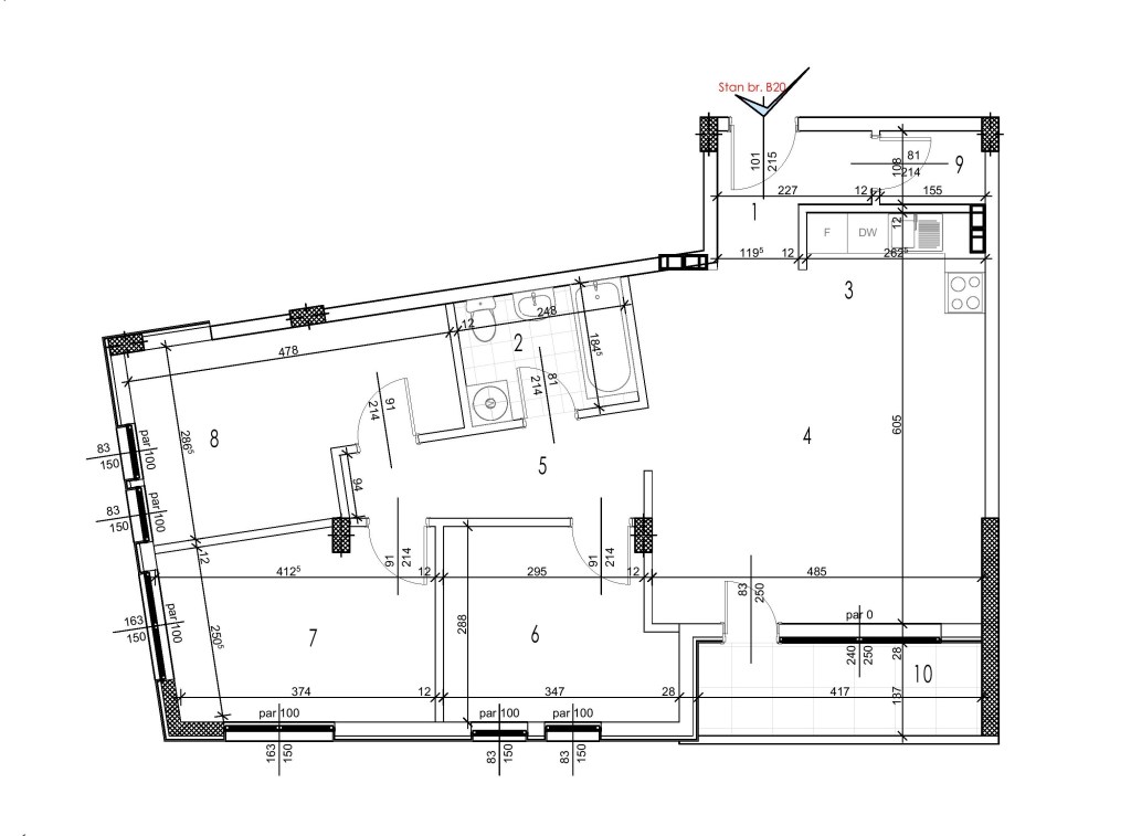
Opis stana B20
Stan B20 je funkcionalno projektovan četvorosoban stan ukupne neto površine od 78,35 m², koji pruža optimalan raspored prostorija i udobnost za svakodnevni život.
Na samom ulazu nalazi se hodnik površine 3,38 m², koji omogućava praktičan pristup svim delovima stana. Iz hodnika se ulazi u kupatilo površine 4,43 m², kao i u ostavu površine 1,61 m², moderno osmišljenu za maksimalnu iskorišćenost prostora.
Kuhinja zauzima 3,69 m² i povezana je sa dnevnom sobom sa trpezarijom, čija površina iznosi čak 23,58 m², što čini centralni i najprostraiji deo stana. Ovaj otvoreni koncept omogućava dovoljno prirodnog svetla i prijatan ambijent za odmor, druženje i obroke.
Pored dnevnog dela nalazi se degažman (prolazni deo) od 5,48 m², koji vodi ka spavaćim sobama površine 8,87 m², 10,46 m² i 11,32 m² – udobnoj i mirnoj zoni za odmor i privatnost.
Stan poseduje i terasu površine 5,53 m², moderno osmišljeno za maksimalnu svakodnevnu funkcionalnost, idealnu za uživanje na otvorenom, ispijanje jutarnje kafe ili večernje opuštanje.
Celokupna organizacija prostora u stanu B20 osmišljena je tako da pruži maksimalnu funkcionalnost, udobnost i osećaj prostranosti.













