
Stan B9
Otkrijte moderan trosoban stan površine 64,57 m², pažljivo projektovan za udoban i funkcionalan život. Prostrana dnevna soba sa trpezarijom i kuhinjom čini srce doma, sa dve komforne spavaće sobe i degažmanom koji obezbeđuje privatnost. Terasa od 4,96 m² pruža savršeno mesto za opuštanje. Savršen spoj elegancije, praktičnosti i prijatnog ambijenta — idealan stan za savremeni način života.

Opis stana B9
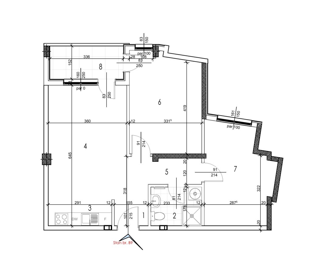
Stan B9 je funkcionalno projektovan trosoban stan ukupne neto površine od 64,57 m², koji pruža optimalan raspored prostorija i udobnost za svakodnevni život.
Na samom ulazu nalazi se hodnik površine 1,80 m², koji omogućava praktičan pristup svim delovima stana. Iz hodnika se ulazi u kupatilo površine 4,01 m², kao i u ostavu površine, moderno osmišljenu za maksimalnu iskorišćenost prostora.
Kuhinja zauzima 3,38 m² i povezana je sa dnevnom sobom sa trpezarijom, čija površina iznosi čak 20,16 m², što čini centralni i najprostraiji deo stana. Ovaj otvoreni koncept omogućava dovoljno prirodnog svetla i prijatan ambijent za odmor, druženje i obroke.
Pored dnevnog dela nalazi se degažman (prolazni deo) od 2,83 m², koji vodi ka spavaćim sobama površine 14,47 m² i 12,96 m² – udobnoj i mirnoj zoni za odmor i privatnost.
Stan poseduje i terasu površine 4,96 m², moderno osmišljeno za maksimalnu svakodnevnu funkcionalnost, idealnu za uživanje na otvorenom, ispijanje jutarnje kafe ili večernje opuštanje.
Celokupna organizacija prostora u stanu B9 osmišljena je tako da pruži maksimalnu funkcionalnost, udobnost i osećaj prostranosti.










